Pines West

Pines West is located in Oakland Park Condos
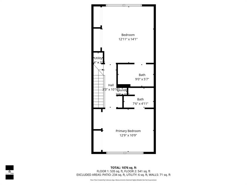
Spectacular gated Pines West, updated 2 bedroom 2 1/2 bath, 2 story townhome- Freshly painted, Best location in the community w/ pond, water feature, pool & clubhouse right outside your private patio. Updated kitchen, quartz counters, stainless steel appliances, custom cabinets, extra storage, & custom lighting. All three bathrooms are completely updated , hi end lighting, cabinets, tile, plumbing, & state of the art shower systems with endless hot water provided by a tankless water heater & whole house water treatment system. Split bedroom layout features vaulted ceilings & spacious wall to wall closets. All windows are impact glass (shutters as well). Maint. includes cable, internet, full reserves, master insurance, sewer, garbage, pool & fitness center. Pets are welcome.

Details

Pines West
Garden, Pool, Water
Yes
East
Patio, Porch
1
-
Ceramic Tile, Laminate

Interior Features

  • Vaulted Ceiling(s)
  • Bedroom Layout - Split
  • Closet Cabinetry

Exterior Features

  • Balcony

Amenities

  • Pool
  • Community Room

Lease Information

365

Property Tax Information

$3,323
2025
CondosandCondos.com is not responsible for the accuracy of the information listed above. The data relating to real estate for sale/rent on this web site comes in part from the Internet Data Exchange Program and the South East Florida Regional MLS and is provided here for consumers personal, non-commercial use, It may not be used for any purpose other than to identify prospective properties consumers may be interested in purchasing. Real Estate listings held by brokerage firms other than the office owning this web site are marked with the IDX logo. Listing courtesy of The Keyes Company. Data provided is deemed reliable but not guaranteed.